Caracteristici Reductor melcat NMRW 40 i=80 71B5 H18 (Specificații Rapide):
Specificatii Tehnice Esențiale: Gabarit 40, Raport i=80, și Compatibilitate IEC 71B5
Modelul NMRW 40 este definit de centrul său axial de 40 mm (mărimea 40) și este livrat cu un raport de transmisie fix de . Acesta este un raport foarte mare, indicând faptul că arborele de intrare (melcul) se rotește de 80 de ori pentru ca arborele de ieșire (roata melcată) să execute o rotație completă. Această reducere extremă a vitezei (1:80) rezultă într-o amplificare maximă a cuplului, fiind ideală pentru aplicațiile foarte lente, de forță.
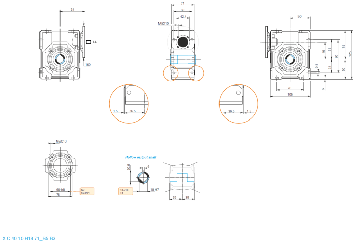
Gabaritul 40 se referă la dimensiunea carcasei reductorului , în timp ce 71B5 definește standardul motorului electric cu care reductorul trebuie să se cupleze. Specificația standardului IEC 71B5 (Flanșă Mare) indică faptul că reductorul este proiectat pentru motoare cu dimensiunea cadrului 71 (frame size 71), utilizând o flanșă de diametru mare (160 mm) , esențială pentru prinderea structurală.
Caracteristici Dimensionale Critice pentru Montaj (Gabarit 71B5)
Reductorul NMRW 40 este echipat pentru a se cupla la un motor electric de mărimea 71, folosind flanșa B5, care are un diametru exterior de 160 mm. Diametrul axului de intrare necesar este de 14 mm, asigurând o potrivire precisă și stabilă cu arborele motorului. Axul de ieșire standard este tubular (gol) cu un diametru de H18 mm, facilitând cuplarea directă pe arborele mașinii utilizatoare.
Tabelul de mai jos confirmă standardele critice de cuplare IEC 71 B5:
| Parametru de Conexiune | Cod Reductor (NMRW 40) | Standard Motor IEC 71 (B5 Flange) | Importanță pentru B2B |
| Gabarit Motor (Frame Size) | 71 | 71 Frame | Asigură potrivirea fizică cu motorul electric |
| Tip Flanșă de Intrare | B5 (Flanșă Mare) | B5 D-Flange | Standard de fixare structurală |
| Diametru Exterior Flanșă (P) | 160 mm | 160 mm | Verificarea dimensională exactă |
| Diametru Ax Motor (D) | 14 mm | 14 mm | Compatibilitate cu arborele de intrare |
| Diametru Ax Ieșire | H18 mm (Ax Tubular Standard) | N/A | Baza pentru transmiterea puterii |
Construcție Durabilă și Optimizare Termică
Mărimea 40 este fabricată cu o carcasă din aliaj de aluminiu turnat sub presiune. Utilizarea aluminiului pentru dimensiunile mici oferă un profil compact și o greutate redusă, optimizând în același timp disiparea termică. Carcasa din aluminiu este tratată special, incluzând sablarea și tratamente anticorozive, urmate de vopsirea cu pulbere epoxi-poliester, de obicei în nuanța RAL 5010 (Albastru).
Angrenaje de Precizie și Lubrifiere Universală
Elementul central al reductorului, melcul, este fabricat din oțel 20Cr, care beneficiază de tratamente termice de carbonizare și călire (quencher heat treatment). Acest proces special de întărire crește duritatea suprafeței melcului până la 56~62 HRC, asigurând o rezistență excelentă la uzură și un randament crescut în transmisia cuplului.
Roata elicoidală (coroana melcată) este confecționată dintr-un aliaj de bronz de înaltă performanță (similar Cu Sn12 Ni2). Alegerea acestui aliaj este dictată de capacitatea sa superioară de a rezista la frecare intensă și la încărcări radiale mari, garantând longevitatea transmisiei.
Unitățile din aluminiu sunt furnizate pre-umplute cu ulei sintetic (de obicei ISO VG320). Această caracteristică elimină nevoia de a verifica nivelul de lubrifiant, permițând instalarea universală (în orice poziție de montaj) fără riscul de oxidare sau contaminare internă.
Aplicații Industriale și Beneficiile Raportului 1:80 (Conversie)
Raportul de transmisie (80:1) este unul dintre cele mai mari rapoarte oferite, necesar în aplicațiile unde se urmărește un cuplu extrem și o viteză de ieșire foarte mică și extrem de precisă.
Reductorul NMRW 40 i=80 este soluția ideală pentru sistemele care necesită o turație de ieșire minimală și o creștere masivă a cuplului. De exemplu, un motor standard de 4 poli (1400 rpm) va produce o turație de ieșire de aproximativ 17,5 rpm, fiind perfect pentru mecanisme de poziționare de finețe, dozare de mare precizie și aplicații care necesită mișcare lentă, dar forță mare.
Domenii de Utilizare Optime
Domeniile de utilizare tipice includ:
- Mașini de Dozare și Umplere: Necesită mișcări lente, controlate și precise pentru volumul de produs.
- Sisteme de Ridicat și Transport: Ideal pentru trolii mici, mecanisme de reglare sau conveioare cu sarcină foarte grea, unde este necesară o forță mare la viteză mică.
- Echipamente de Procesare: Utilizat în mixere cu vâscozitate mare, agitatoare și mașini de ambalare care funcționează la viteză redusă, asigurând o mișcare constantă și fiabilă.
- Mașini Unelte: Mecanisme care necesită precizie în avans sau poziționare.
Instalare, Mentenanță și Flexibilitate
Reductoarele din seria NMRW/NMRV sunt recunoscute pentru durata de viață lungă și fiabilitatea lor , fiind proiectate pentru a oferi o performanță durabilă și eficientă.
Designul permite montajul universal (omnibearing installation) datorită carcasei din aluminiu și lubrifiantului sintetic pre-umplut , eliminând nevoia de ajustări complicate ale nivelului de ulei la instalare.
Deși modelul standard este livrat cu un ax tubular H18 mm , modularitatea seriei permite utilizatorilor să adapteze unitatea de bază cu accesorii esențiale:
- Kituri de Axe de Ieșire: Permite transformarea axului tubular în ax solid (de exemplu, H19 mm), oferind flexibilitate în funcție de specificațiile dorite.
- Braț de Reacție: Accesoriu utilizat pentru a stabiliza reductorul și a prelua reacția cuplului.
- Flanșe de Ieșire: Pot fi adăugate flanșe de ieșire pentru o fixare suplimentară pe structura mașinii.
La montaj, asigurați-vă că se verifică etanșările de ulei după depozitare îndelungată (peste 4-6 luni) și că admisia de aer a motorului electric nu este obstrucționată, pentru a asigura o răcire optimă.

